





































Eine besondere Geschichte in Žaborić – eine Wohnung, in der das Meer Ihr Mitbewohner wird
Standort: Šibenik okolica - Žaborić
-
Größe (m²): 133 m²
-
Zimmer: 3
-
Bäder 2
-
Entfernung vom Meer 10 m
-
Blick aufs Meer
Details
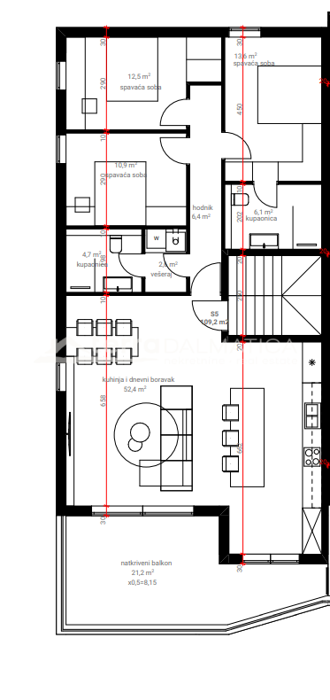
Im ruhigen Küstenort Žaborić, unweit der historischen Stadt Šibenik, steht ein exklusives Penthouse zum Verkauf. Diese Wohnung im zweiten Stock eines modernen Gebäudes vereint modernes Design, Komfort und einen bezaubernden Panoramablick auf die Adria, der sich dank der großzügigen Glaswände wie ein Teil des Interieurs anfühlt. Die Wohnfläche der Wohnung beträgt 109 m², die Gesamtfläche 133 m². Das geräumige Wohnzimmer mit Küche und Essbereich strahlt Eleganz aus und vermittelt den Eindruck eines großzügigen Raums. Die Küche besticht durch ihre moderne Ausstattung und viel Platz für alle Küchenutensilien. Der Innenraum ist in neutralen Tönen gehalten, mit sanften und harmonischen Farben, die perfekt mit dem Äußeren und der Umgebung harmonieren. Ein langer Flur führt zu drei Schlafzimmern, von denen eines über ein eigenes Bad verfügt, während sich das zweite Badezimmer mit Dusche am Anfang des Flurs befindet. Jedes Schlafzimmer ist in einem modernen Stil mit Details eingerichtet, die das Ambiente unterstreichen und den Raum noch komfortabler machen. Ein besonderer Vorteil der Wohnung ist die geräumige Terrasse mit atemberaubender Aussicht, auf der sich ein Essbereich im Freien sowie eine Entspannungsecke mit bequemen Sesseln, einem Sofa und einem Minitisch befinden – perfekt für abendliche Treffen mit Freunden. Die Wohnung hat außerdem eine Dachterrasse. Das Penthouse ist mit Fußbodenheizung über eine Wärmepumpe in allen Räumen, Split-Klimaanlagen, Aluminiumfenstern mit dreischichtigem Glas, elektrischen Rollläden und Moskitonetzen ausgestattet, während Glasgeländer die ungehinderte Aussicht betonen. Zur Wohnung gehört ein gesicherter Parkplatz mit einer Ladestation für Elektrofahrzeuge. Žaborić, bekannt für sein kristallklares Meer, seine gepflegten Strände und seinen mediterranen Charme, bietet Ruhe und Privatsphäre, während in unmittelbarer Nähe Šibenik liegt, eine Stadt unter dem Schutz der UNESCO, erkennbar an der Kathedrale des Heiligen Jakob, Festungen und einem reichen kulturellen Erbe, was diesen Ort zu einer perfekten Wahl für einen Urlaub oder einen ganzjährigen Wohnsitz macht.
Agent

Tatjana Tanfara
+38522213506Svi naši klijenti sa njemačkog govornog područja upoznali su Tatjanu, jer Tatjana je naš ekspert za njemački jezik.
Prije dolaska u agenciju Terra Dalmatica, Tatjana je godinama radila u turističkom sektoru, pa je svoju vještinu pregovaranja i izrazitu komunikativnost, vrlo brzo i uspješno, sa turizma prebacila na trgovinu nekretninama.
Tatjana će vam biti na raspolaganju tijekom cijelog kupoprodajnog procesa, kako bi korak po korak došli do željenog cilja. Njezin otvoren, jednostavan i šarmantan pristup pomoći će svakom klijentu da, pri kupnji ili prodaji nekretnine, sa lakoćom definira vaše mogućnosti i želje.
Tatjana je također posvećena obitelji, a svoje slobodno vrijeme provodi aktivno kako bi napunila baterije za nove radne pobjede.
Interessieren Sie sich für diese Immobilie?
Setzen Sie sich mit uns in Verbindung und vereinbaren Sie einen kostenlosen Besichtigungstermin.
Ähnliche Eigenschaften
Immobilien in der Nähe
Kontakt Agent
Sie brauchen professionellen Rat?
Unser Angebot wird täglich aktualisiert. Schicken Sie uns eine Nachricht mit Ihren Wünschen und unsere Agenten werden Ihnen helfen, eine Immobilie zu finden, die Ihren Bedürfnissen entspricht.