Buchen Sie eine Tour
Details

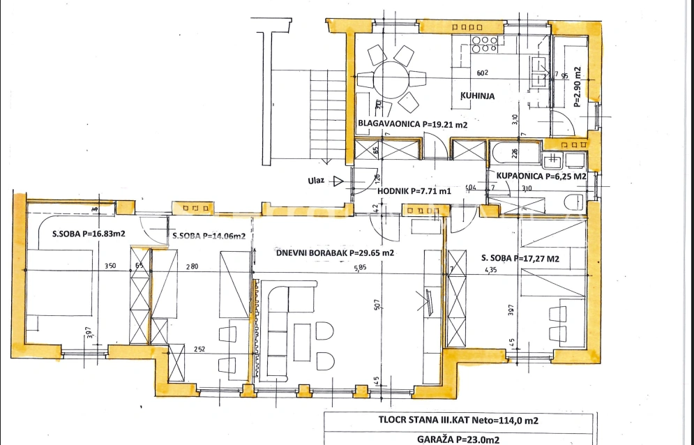
Zum Verkauf steht eine geräumige und helle Wohnung in Šibenik, in der Nähe des Stadtzentrums. Die Immobilie besticht durch ihren Komfort, die hohen Decken und die hervorragende Raumaufteilung und ist ideal für Familien oder urbanes Wohnen in unmittelbarer Nähe zu allen Annehmlichkeiten.

Zeitplan

Die Wohnung verfügt über eine Wohnfläche von insgesamt 114 m² und besteht aus einem geräumigen Flur, einer Küche mit Essbereich und Abstellraum, einem Badezimmer, zwei Schlafzimmern, einem Arbeitszimmer und einem gemütlichen Wohnzimmer, das viel Tageslicht bietet.

Der funktionale Grundriss ermöglicht eine klare Trennung von Wohn- und Schlafbereich, während das zusätzliche Arbeitszimmer die Möglichkeit bietet, je nach Bedarf der zukünftigen Besitzer ein Heimbüro, ein Kinderzimmer oder zusätzlichen Raum einzurichten.

Ausrüstung

Die Wohnung verfügt über eine Zentralheizung, die ganzjährig für ein angenehmes Raumklima sorgt. Hohe Decken verstärken das großzügige Raumgefühl, und große Fenster machen die Wohnung besonders hell und gemütlich.

Zusätzliche Vorteile

Zur Wohnung gehört außerdem eine 23 m² große Garage, was in der Stadt ein großer Vorteil ist und sicheres Parken sowie zusätzlichen Stauraum bietet.

Standort

Die Nähe zum Zentrum von Šibenik ermöglicht einen schnellen Zugang zu allen wichtigen Einrichtungen – Geschäften, Schulen, öffentlichen Institutionen und kulturellen Sehenswürdigkeiten – und bietet gleichzeitig Ruhe und Komfort des Wohnens in einem städtischen Umfeld.

Für weitere Informationen und zur Vereinbarung eines Besichtigungstermins kontaktieren Sie bitte unsere Makler – wir geben Ihnen gerne alle Details und unterstützen Sie beim Kauf dieser attraktiven Immobilie in der Stadt.

Agent
Ana Vlaić

Ana Vlaić

385992135066

Ana ist ein Geschäftsfrau mit jahrelanger Geschäftserfahrung und theoretischem Wissen an der Polytechnischen Gesellschaft in Sibenik. Ihre Expertise umfasst eine Menge von Geschäftserfahrung, Marketing, ausgedrückte Verhandlungsfähigkeiten und eine gute Kenntnis des Immobilienmarktes. Ana ist ein hervorragender Zuhörer, der die Bedürfnisse und Lebensziele von Verkäufern und Käufern, mit Geduld und Wissen vermittelt. Sie weiss, wie man Eigentum Verkauft, mit kreativen Möglichkeiten, um die Essenz und Schönheit der einzelnen Immobilien zu präsentieren. Ihre Fähigkeit des Managements, Marktchancen zu identifizieren, die Aufmerksamkeit auf Details und Zuverlässigkeit bieten ihren Kunden die optimalen Eigenschaften .

  • Größe (m²):

    114

  • Zimmer:

    3

  • Bäder:

    Ja

  • Entfernung vom Meer (m):

    300

  • Meerblick:

    Nein

  • Meeresfront:

    Nein

  • Im Bau:

    Nein

  • Barrierefrei für Behinderte:

    Nein

  • Umwelt:

    Friedlich, Stadtgebiet

  • Land:

    HR

  • Zustand:

    Ausgezeichnet

  • Parken:

    Indoor-Garage

  • Versorgungsunternehmen:

    Elektrizität, Wasser, Abwasser, Internet

  • Bodenbelag Typ:

    Parkett, Keramische Kacheln

  • Heizung Typ:

    Zentrale

  • Eigentumsurkunde:

    Ja

  • Schlüssel im Besitz:

    Nein

  • Anzahl der Schlafzimmer:

    3

  • Wohnzimmer:

    Ja

  • Anzahl der Badezimmer:

    Ja

Interessieren Sie sich für diese Immobilie?

Setzen Sie sich mit uns in Verbindung und vereinbaren Sie einen kostenlosen Besichtigungstermin.

Art der Tour:

Kontakt Agent

Sie brauchen professionellen Rat?

Unser Angebot wird täglich aktualisiert. Schicken Sie uns eine Nachricht mit Ihren Wünschen und unsere Agenten werden Ihnen helfen, eine Immobilie zu finden, die Ihren Bedürfnissen entspricht.

    Vielen Dank!

    Ihre Nachricht wurde gesendet.

    Anfrage für eine Tour - {{date}}

      Nachricht gesendet

      Vielen Dank für Ihr Interesse!
      Wir melden uns in Kürze!

      Kontakt zu einem Agenten

        Nachricht gesendet

        Vielen Dank für Ihr Interesse!
        Wir werden uns in Kürze bei Ihnen melden!