Buchen Sie eine Tour
Details

Eine erstklassige Villa in Vodice mit einer Wohnfläche von 390 m² auf einem großzügigen 850 m² großen Grundstück steht zum Verkauf. Design, Ausstattung und Einrichtung vereinen Luxus, Privatsphäre und modernes Wohnen auf ideale Weise. Ein besonderes Highlight ist der beeindruckende, 75 m² große Infinity-Pool mit Wärmepumpe, der ganzjährig zum Baden einlädt.

Zeitplan
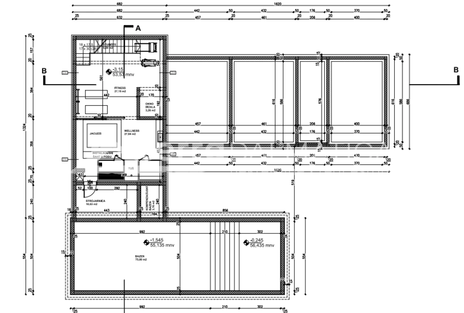
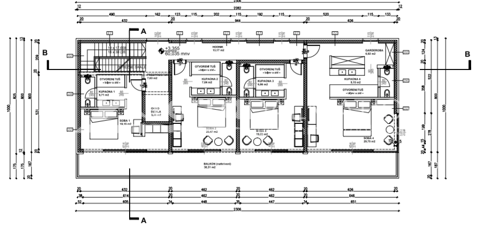
Die Villa erstreckt sich über Untergeschoss, Erdgeschoss und Obergeschoss. Die funktionale Raumaufteilung gewährleistet maximalen Komfort und Privatsphäre. Im Untergeschoss befinden sich ein Wellnessbereich mit Fitnessraum, Sauna und Whirlpool, ein Technikraum, ein Treppenhaus und ein Aufzug, der alle Etagen miteinander verbindet. Das Erdgeschoss umfasst eine Eingangshalle, ein geräumiges Wohnzimmer, eine offene Küche mit Essbereich, ein Gäste-WC und ein Treppenhaus. Im Obergeschoss befinden sich vier komfortable Schlafzimmer, jeweils mit eigenem Bad, ein zusätzliches Ankleidezimmer, ein Flur und ein Balkon, der zusätzlichen Platz zum Entspannen im Freien bietet.

Ausrüstung und technische Merkmale
Die Villa ist mit modernster Technik und zeitgemäßen Lösungen ausgestattet, die den Wohnstandard deutlich erhöhen. Ein Aufzug ermöglicht bequemes Bewegen zwischen den Etagen. In den Bädern und im Keller sorgt eine elektrische Fußbodenheizung für angenehme Temperaturen, während im Erdgeschoss eine unauffällig integrierte Wärmepumpe für angenehme Temperaturen sorgt. Die Vorhänge sind dezent in Nischen integriert und verfügen über elektrische Hebevorrichtungen. Auch die Beleuchtung im Wohnbereich lässt sich elektrisch regulieren. Auf dem Dach der Villa ist die Installation eines zusätzlichen Whirlpools geplant, und der Zugang zur Dachterrasse steigert die Funktionalität und Attraktivität der Immobilie zusätzlich.

Außenbereiche
Der 850 m² große Garten bietet viel Platz im Freien, wobei der bereits erwähnte beheizte Infinity-Pool das Bild des Außenbereichs prägt. Der Bereich ist ideal zum Entspannen, für gesellige Stunden und zum Schaffen einer privaten Oase der Ruhe.

Standort
Vodice zählt zu den begehrtesten Reisezielen und Lifestyle-Destinationen an der Adriaküste und ist bekannt für seine gepflegten Strände, das vielfältige Freizeitangebot und die hervorragende Verkehrsanbindung. In der Nähe befinden sich Šibenik, der Nationalpark Krka und zahlreiche weitere attraktive Orte, was diesen Standort sowohl zum Wohnen als auch zum Investieren äußerst attraktiv macht.

Die Mehrwertsteuer ist im Preis enthalten.

Für weitere Informationen und zur Vereinbarung eines Besichtigungstermins kontaktieren Sie bitte unsere Agenten.

Agent
Goran Živić

Goran Živić

+385991669105

Nach dem Abschluss der weiterführenden Schule in seiner Heimatregion Slawonien zog Goran nach Dalmatien, genauer gesagt nach Vodice, wo er seinen Weg in der Branche des Immobilienverkaufs und der Vermittlung begann – ein Weg, der nun schon über 20 Jahre andauert.

In all diesen Jahren, die voller schöner Momente, zufriedener Kunden und Beziehungen zu Käufern und Verkäufern waren, aus denen Freundschaften entstanden sind, ist dieser Beruf für ihn mehr als nur ein Job – er ist seine Berufung, in der es für ihn keine Unbekannten gibt.

Mit seiner langjährigen Erfahrung und seinem umfangreichen Wissen vermittelt er seinen Kunden beim Immobilienkauf Sicherheit, Professionalität und eine angenehme Atmosphäre, in der sich niemand unwohl oder unsicher fühlt.

Er besitzt ausgeprägte Verhandlungskompetenzen, versteht es, Vertrauen zum Gesprächspartner aufzubauen, und verfolgt stets das Ziel, dass der Käufer zufrieden ist. Ergänzt wird dies durch fundiertes juristisches Wissen, das er sowohl durch sein Studium im Bereich Verwaltungsrecht als auch durch praktische Berufserfahrung erworben hat – inklusive fundierter Kenntnisse der Gesetze und Vorschriften in der Republik Kroatien.

Er hat Projekte zur Errichtung von Immobilien von der Erlangung der Baugenehmigung bis hin zum Endprodukt und Verkauf geleitet. Goran ist mit dem Immobilienmarkt in der Republik Kroatien bestens vertraut und verfolgt kontinuierlich alle Neuerungen sowie Ankündigungen und Veränderungen auf dem Markt.

  • Größe (m²):

    390

  • Land (m²):

    850

  • Zimmer:

    4

  • Bäder:

    5

  • Entfernung vom Meer (m):

    1000

  • Meerblick:

    Ja

  • Meeresfront:

    Nein

  • Im Bau:

    Nein

  • Barrierefrei für Behinderte:

    Nein

  • Orientierung:

    E, S

  • Siehe:

    Panoramablick, Blick aufs Meer

  • Umwelt:

    Friedlich

  • Land:

    HR

  • Jahr gebaut:

    2026

  • Anzahl der Etagen:

    3

  • Zustand:

    Neu bauen, Ausgezeichnet

  • Konstruktion Typ:

    Beton

  • Parken:

    Parken im Freien, Indoor-Garage

  • Versorgungsunternehmen:

    Elektrizität, Wasser, Internet

  • Bodenbelag Typ:

    Parkett, Keramische Kacheln

  • Heizung Typ:

    Unterflur, Klimatisierung

  • Eigentumsurkunde:

    Ja

  • Baugenehmigung:

    Ja

  • Nutzungserlaubnis:

    Ja

  • Schlüssel im Besitz:

    Nein

  • Anzahl der Schlafzimmer:

    4

  • Wohnzimmer:

    Ja

  • Anzahl der Badezimmer:

    4

  • Volle Badezimmer:

    4

  • Halb-Badezimmer:

    Ja

  • Maßgeschneiderte Küche:

    Ja

  • Waschküche:

    Ja

  • Zusätzliche Innenausstattung:

    Kronleuchter, Dekorative Beleuchtung, Kücheninsel, Offener Grundriss, Begehbarer Einbauschrank

  • Arrangierter Garten:

    Ja

  • Rasen:

    Ja

  • Bäume:

    Ja

  • Garten Vegetation:

    Ja

  • Bewässerungsanlage:

    da

  • Pool Typ:

    Beheizt

  • Pool Heizung:

    Ja

  • Zusätzliche Pool-Funktionen:

    preljev

  • Äußere Merkmale:

    Äußere Beleuchtung, Privater Hof, Äußere Beleuchtung

  • Fenster Typ:

    Aluminium

  • Merkmale der Immobilie:

    Aufzug, Aufzug, Jacuzzi, Klimatisierung, Möbliert, Untergeschoss, Fußbodenheizung, Sicherheitstür, Sauna, Lagerung, Terrasse, Kronleuchter, Kühlung, Fitness Center, Garage, Offene Küche, Parken, Freibad

Interessieren Sie sich für diese Immobilie?

Setzen Sie sich mit uns in Verbindung und vereinbaren Sie einen kostenlosen Besichtigungstermin.

Art der Tour:

Kontakt Agent

Sie brauchen professionellen Rat?

Unser Angebot wird täglich aktualisiert. Schicken Sie uns eine Nachricht mit Ihren Wünschen und unsere Agenten werden Ihnen helfen, eine Immobilie zu finden, die Ihren Bedürfnissen entspricht.

    Vielen Dank!

    Ihre Nachricht wurde gesendet.

    Anfrage für eine Tour - {{date}}

      Nachricht gesendet

      Vielen Dank für Ihr Interesse!
      Wir melden uns in Kürze!

      Kontakt zu einem Agenten

        Nachricht gesendet

        Vielen Dank für Ihr Interesse!
        Wir werden uns in Kürze bei Ihnen melden!